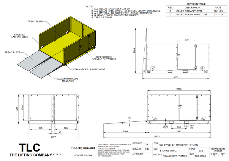
3T S30 Sweeper Transport Frame

3T S30 Sweeper Transport Frame

No review yet. Write Review
Regular price $0.00
InStock SOLD OUT

Request SWI

  • Capacity - 3T
  • Tare - 1.2T

TLC 02508

top
Added to cart :
Add to cart failed :
prouduct successfully added to wishlist !